Жилищное строительство
Назад в каталог
Плиты парапетные
Плиты фундаментные
Монолитная ребристая плита перекрытия
Блоки-стаканы
Диафрагмы жесткости
Ростверк
Ленточный фундамент
Плиты карнизные
Кабины санитарно-технические
Фермы железобетонные
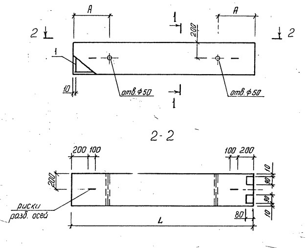
Балки железобетонные
Балконные плиты
Шахты лифтовые
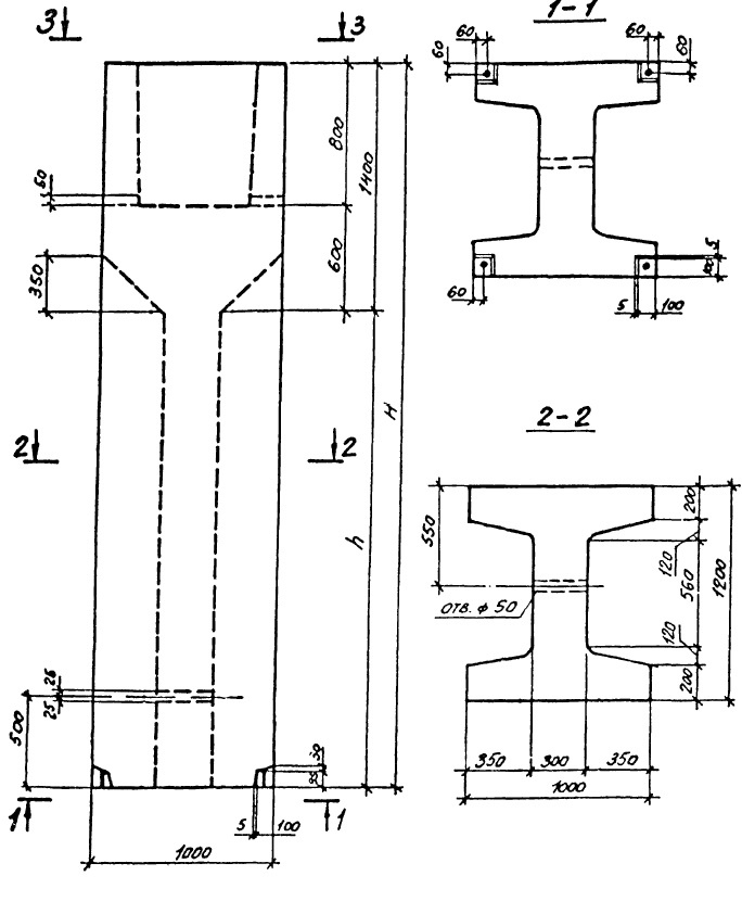
Колонны железобетонные
Стаканы дефлекторов бетонные
Фундаментные блоки
Сваи железобетонные
Вентиляционные блоки
Панели стеновые
Плиты перекрытия
Фундамент, сваи, стеновые блоки
Перемычки и ригели
